物件詳細
マンション
■コスモステージ大久保パークプラザ

詳細画像
物件の特徴
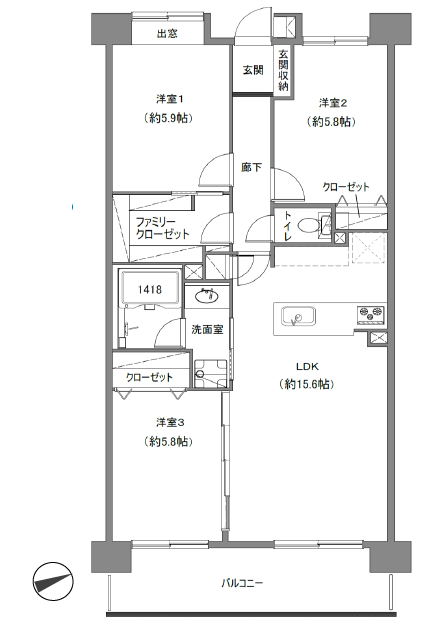
2025年4月リフォーム完了の3LDK♪
4階部分・南東向きで陽当たり・眺望良好です。京成本線「京成大久保」駅より徒歩約11分で通勤・通学にも便利!食洗器や人感センサー照明など生活に便利な設備つきです♪
周辺施設
物件詳細情報
所在地 | 習志野市実籾2丁目 |
---|---|
交通 | JR総武線「幕張本郷」駅より徒歩約30分 京成本線「京成大久保」駅より徒歩約11分 京成本線「実籾」駅より徒歩約15分 |
専有面積 | 壁芯75.27㎡ |
所在階 | 4階/9階建 |
管理費 | 月額/7,800円 |
修繕積立金 | 月額/15,100円 |
管理形態 | 全部委託 |
管理会社 | 大和ライフネクスト株式会社 |
管理方式 | 日勤 |
建物面積 | - |
用途地域 | 工業地域 |
高度地区 | |
都市計画 | |
間取り | 3LDK |
販売数/総数 | -/123戸 |
完成 | 平成11年2月 |
開発許可番号/確認番号 | - |
土地面積 | |
建ぺい率 | - |
容積率 | - |
土地権利 | 所有権 |
地目 | - |
構造 | 鉄筋コンクリート造 |
現状 | 空室 |
設備 | |
接道 | - |
引き渡し日 | 即可 |
取引態様 | 仲介 |
物件価格 | 2,690万円 |
備考欄 | ■駐車場/月額6,500~10,000円・空き状況要確認 ■自転車置き場/2台目まで無料、3台目以降月額100円 ■バイク置き場/月額500円・1,000円 ■バルコニー面積/12.9㎡ ■エレベーター/有 ■オートロック/有 ■共益費/月額300円 ■自治会費/月額300円 ■全体修繕積立金/月額7,500円 ■2025年4月リノベーション完了/キッチン・バス・洗面台・トイレ・給湯器・洗濯機用防水バン、水栓交換・建具・床・壁・玄関土間タイル・LED照明設置・ハウスクリーニング等 |
- ❊ 価格は物件の代金総額を表示しており、消費税が課税される場合は税込み価格です。(1,000円未満は切り上げ。)税率は引き渡し時期により異なりますので、各物件の詳細につきましてはお問い合わせください。 ❊ 敷地権利が借地権のものは価格に権利金を含みます。 ❊ 制作中に内容が変更される場合もありますので、あらかじめご了承ください。 ❊ 購入の前には物件内容や契約条件についてご自身で十分な確認をしていただくようにお願いいたします。 ❊ 完成予想図はいずれも外構、植栽、外観等実際のものとは多少異なることがあります。 ❊ CG合成の画像の場合、実際とは多少異なる場合があります。 ❊ 予告物件の場合、本広告を開始するまで予約・契約はできませんが、物件に関する近隣情報、ご質問などはお答えします。お気軽にお問い合わせください。