物件詳細
マンション
■ネオハイツ船橋薬円台公園
詳細画像
物件の特徴
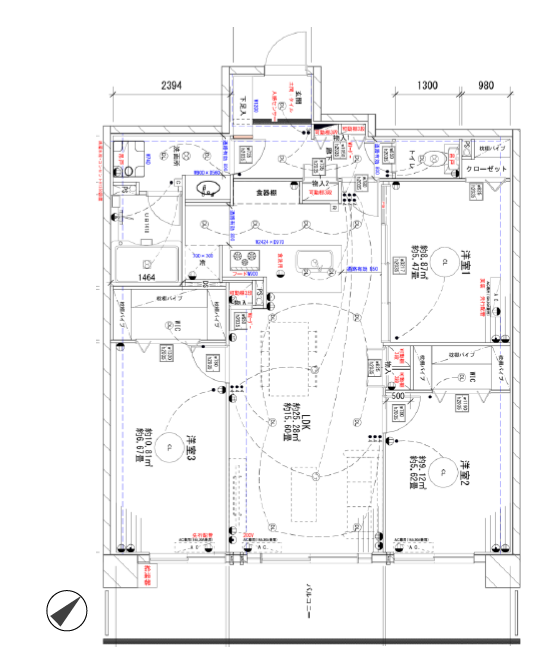
8階の南東、ワイドスパンバルコニーにつき陽当たり良好!
新規内装リノベーション済で大変きれいな室内です。浴室はゆとりの1416サイズ、キッチンはビルトイン食洗機、ガラストップコンロの対面キッチン♪
周辺施設
物件詳細情報
| 所在地 | 船橋市習志野台4丁目 |
|---|---|
| 交通 | 京成松戸線「習志野台」駅 徒歩11分 東葉高速線「北習志野」駅 徒歩16分 |
| 専有面積 | 壁芯75.75㎡ |
| 所在階 | 8階/9階建 |
| 管理費 | 月額/9,800円 |
| 修繕積立金 | 月額/22,730円 |
| 管理形態 | 全部委託 |
| 管理会社 | 大和ライフネクスト株式会社 |
| 管理方式 | 日勤 |
| 建物面積 | - |
| 用途地域 | 第一種中高層住居専用地域 |
| 高度地区 | |
| 都市計画 | |
| 間取り | 3LDK |
| 販売数/総数 | -/89戸 |
| 完成 | 平成9年3月 |
| 開発許可番号/確認番号 | - |
| 土地面積 | |
| 建ぺい率 | - |
| 容積率 | - |
| 土地権利 | 所有権 |
| 地目 | - |
| 構造 | 鉄骨鉄筋コンクリート・鉄骨コンクリート造 |
| 現状 | 空室 |
| 設備 | |
| 接道 | ₋ |
| 引き渡し日 | 即時 |
| 取引態様 | 仲介 |
| 物件価格 | 2,990万円 |
| 備考欄 | ■自転車置き場:200円/月額 ■バイク置き場:1,000円/月額 ■駐車場:7,000円~8,000円/月額 ■ペット飼育:不可 ■エレベーター:2基あり ■新規リノベーション:キッチン/ユニットバス/洗面台/トイレ/防水パン・水栓/給湯器/建具/フローリング/壁・天井クロス/玄関土間/エアコン/LED(2025年7月) ■共用部修繕履歴:インターホン交換/共用鉄部塗装/大規模修繕/宅配BOX更新/エレベーターかご内リニューアル(2015年~2024年) |
- ❊ 価格は物件の代金総額を表示しており、消費税が課税される場合は税込み価格です。(1,000円未満は切り上げ。)税率は引き渡し時期により異なりますので、各物件の詳細につきましてはお問い合わせください。 ❊ 敷地権利が借地権のものは価格に権利金を含みます。 ❊ 制作中に内容が変更される場合もありますので、あらかじめご了承ください。 ❊ 購入の前には物件内容や契約条件についてご自身で十分な確認をしていただくようにお願いいたします。 ❊ 完成予想図はいずれも外構、植栽、外観等実際のものとは多少異なることがあります。 ❊ CG合成の画像の場合、実際とは多少異なる場合があります。 ❊ 予告物件の場合、本広告を開始するまで予約・契約はできませんが、物件に関する近隣情報、ご質問などはお答えします。お気軽にお問い合わせください。







