物件詳細
マンション
■ラクラスガーデン

詳細画像
物件の特徴
2025年9月リフォーム完了♪
室内とても綺麗なので気持ちよく新生活を始めることができます。南東向きで陽当り・通風・眺望良好。駐車場は嬉しい平置き100%確保!2路線利用可能で通勤・通学にも便利ですね!
周辺施設
物件詳細情報
所在地 | 習志野市屋敷2丁目 |
---|---|
交通 | JR総武中央線「幕張本郷」駅より徒歩約14分 京成本線「京成大久保」駅より徒歩約15分 |
専有面積 | 壁芯75.64㎡ |
所在階 | 7階/11階建 |
管理費 | 月額/9,800円 |
修繕積立金 | 月額/10,590円 |
管理形態 | 全部委託 |
管理会社 | 株式会社長谷工コミュニティ |
管理方式 | 日勤 |
建物面積 | - |
用途地域 | 第一種中高層住居専用地域 |
高度地区 | |
都市計画 | |
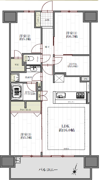
間取り | 3LDK |
販売数/総数 | -/185戸 |
完成 | 平成26年2月 |
開発許可番号/確認番号 | - |
土地面積 | |
建ぺい率 | - |
容積率 | - |
土地権利 | 所有権 |
地目 | - |
構造 | 鉄筋コンクリート造 |
現状 | 空室 |
設備 | 上水道, 下水道, 都市ガス |
接道 | - |
引き渡し日 | 即時 |
取引態様 | 媒介 |
物件価格 | 3,588万円 |
備考欄 | ■駐車場/有(月額100円)空き状況要確認 ■自転車置き場/有(年額600~1,200円) ■バイク置き場/有(月額900円) ■ペット/飼育可能(細則あり) ■バルコニー面積/12.40㎡ ■2025年9月リフォーム完了/キッチン、浴室、洗面台、トイレ、給湯器、全室クロス貼替、フロアタイル、建具、巾木、洗濯パン、吊り戸設置、照明器具新規交換、カーテンレール交換、クリーニング等 |
- ❊ 価格は物件の代金総額を表示しており、消費税が課税される場合は税込み価格です。(1,000円未満は切り上げ。)税率は引き渡し時期により異なりますので、各物件の詳細につきましてはお問い合わせください。 ❊ 敷地権利が借地権のものは価格に権利金を含みます。 ❊ 制作中に内容が変更される場合もありますので、あらかじめご了承ください。 ❊ 購入の前には物件内容や契約条件についてご自身で十分な確認をしていただくようにお願いいたします。 ❊ 完成予想図はいずれも外構、植栽、外観等実際のものとは多少異なることがあります。 ❊ CG合成の画像の場合、実際とは多少異なる場合があります。 ❊ 予告物件の場合、本広告を開始するまで予約・契約はできませんが、物件に関する近隣情報、ご質問などはお答えします。お気軽にお問い合わせください。