アルカンジュ不動産のロゴ画像

お電話での問い合わせ
10:00~19:00 まで(火・水 定休)
メールでの問い合わせ
■夏見台住宅20号棟 - アルカンジュ不動産
お電話での問い合わせ
10:00~19:00 まで(火・水 定休)
メールでの問い合わせ

マンション
物件のメイン画像

詳細画像

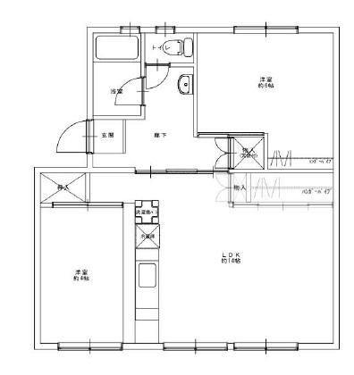
南向き・角部屋・2LDK!
教育施設が徒歩圏内♪やっぱり通学路は短い方が安心ですね!コンビニ・スーパー・ドラッグストアが近く毎日のお買い物が便利です。全居室収納付きでお部屋がスッキリ片付きます◎
  • 施設画像1
    船橋市立夏見台小学校(約350m)
  • 施設画像2
    船橋市立船橋中学校(約1300m)
  • 施設画像3
    夏見台幼稚園・保育園(約750m)
  • 施設画像4
    ファミリーマート 船橋夏見台店(約120m)
  • 施設画像5
    ヨークマート 夏見台店(約350m)
  • 施設画像6
    クリエイトS・D 船橋夏見台店(約450m)
  • 施設画像7
    イオンモール船橋(約2000m)
  • 施設画像8
    船橋総合病院(約1700m)

物件詳細情報

所在地 船橋市夏見台1丁目
交通 JR総武線「船橋」駅 バス約10分「夏見台団地」 停歩約5分
東武野田線「塚田」駅 徒歩約18分
専有面積 壁芯54.79㎡
所在階 4階/5階建
管理費 月額/5,500円
修繕積立金 月額/16,000円
管理形態 一部委託
管理会社 日本総合住生活株式会社
管理方式 日勤
建物面積 -
用途地域 第一種中高層住居専用地域, 第一種住居地域
高度地区
都市計画
間取り 2LDK
販売数/総数 -/690戸
完成 昭和43年3月
開発許可番号/確認番号 -
土地面積
建ぺい率 -
容積率 -
土地権利 所有権
地目 -
構造 RC(鉄筋コンクリート造)
現状 空室
設備 上水道, 下水道, 都市ガス
接道 -
引き渡し日 即時
取引態様 仲介
物件価格 850万円
備考欄 ■南向き・角部屋
■管理組合有
■駐車場:月/7,000円(空き状況要確認)

【設備】
オートバス/追炊機能/浴室に窓有/温水洗浄便座/3口以上コンロ/システムキッチン/収納スペース/全居室収納/照明器具/室内洗濯機置場/都市ガス/モニター付インターホン/来客駐車場
  • ❊ 価格は物件の代金総額を表示しており、消費税が課税される場合は税込み価格です。(1,000円未満は切り上げ。)税率は引き渡し時期により異なりますので、各物件の詳細につきましてはお問い合わせください。 ❊ 敷地権利が借地権のものは価格に権利金を含みます。 ❊ 制作中に内容が変更される場合もありますので、あらかじめご了承ください。 ❊ 購入の前には物件内容や契約条件についてご自身で十分な確認をしていただくようにお願いいたします。 ❊ 完成予想図はいずれも外構、植栽、外観等実際のものとは多少異なることがあります。 ❊ CG合成の画像の場合、実際とは多少異なる場合があります。 ❊ 予告物件の場合、本広告を開始するまで予約・契約はできませんが、物件に関する近隣情報、ご質問などはお答えします。お気軽にお問い合わせください。

Contact

お問い合わせは下記いずれかからお願いします。