物件詳細
マンション
■東船橋ガーデニア5号棟
詳細画像
物件の特徴
\人気の東船橋エリア×専用庭付き/
総戸数330戸のビッグコミュニティ♪JR総武線「東船橋」駅徒歩7分の好立地で都心へのアクセスも良好!車で「奏の杜フォルテ」に行けるので休日のお出かけにも最適ですね♪
周辺施設
物件詳細情報
| 所在地 | 船橋市東船橋3丁目 |
|---|---|
| 交通 | JR中央・総武線「東船橋」駅 徒歩約7分 JR総武線「津田沼」駅 徒歩約27分 |
| 専有面積 | (壁芯)101.73㎡ |
| 所在階 | 1階/4階建 |
| 管理費 | 10,170円/月 |
| 修繕積立金 | 16,680円/月 |
| 管理形態 | 全部委託 |
| 管理会社 | 大和ライフネクスト株式会社 |
| 管理方式 | 日勤 |
| 建物面積 | - |
| 用途地域 | 第一種低層住居専用地域, 準住居地域 |
| 高度地区 | |
| 都市計画 | |
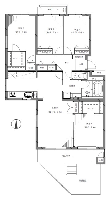
| 間取り | 4LDK |
| 販売数/総数 | -/330戸(5号棟:8戸) |
| 完成 | 昭和58年11月 |
| 開発許可番号/確認番号 | - |
| 土地面積 | |
| 建ぺい率 | - |
| 容積率 | - |
| 土地権利 | 所有権 |
| 地目 | - |
| 構造 | RC(鉄筋コンクリート造) |
| 現状 | 空室 |
| 設備 | |
| 接道 | - |
| 引き渡し日 | 即可 |
| 取引態様 | 仲介 |
| 物件価格 | 3,398万円 |
| 備考欄 | ■バルコニー面積:10.53㎡ ■専用庭面積:不明 ■主要採光面:南向き ■エレベーター:有 ■ペット飼育:可(細則あり) ■施工会社:株式会社熊谷組、東急建設株式会社 共同企業体 【2025年5月内装リフォーム完了】 LIXIL製システムキッチン新規交換(3口ガラストップコンロ・人造大理石トップ・浄水器一体型水栓)/LIXIL製ユニットバス新規交換(1620・追焚機能・浴室換気乾燥暖房機)/LIXIL製洗面化粧台新規交換/LIXIL製一体型シャワートイレ新規交換/洗濯機用防水バン・水栓新規交換/給湯器新規交換(追焚機能付き)/全建具交換/全室フローリング貼替/壁・天井クロス貼替/玄関土間タイル張り/エアコン1基設置/LED照明器具設置/モニター付きインターホン新規交換/ハウスクリーニング等 ※全体修繕履歴あり 【その他費用】 ・駐車場:9,000円/月 ※空き状況はようかくにん ・駐輪場:(大人用200円/月・子供用100円/月) ・バイク置場:500~2,000円/月 ・専用庭使用料:500円/月 |
- ❊ 価格は物件の代金総額を表示しており、消費税が課税される場合は税込み価格です。(1,000円未満は切り上げ。)税率は引き渡し時期により異なりますので、各物件の詳細につきましてはお問い合わせください。 ❊ 敷地権利が借地権のものは価格に権利金を含みます。 ❊ 制作中に内容が変更される場合もありますので、あらかじめご了承ください。 ❊ 購入の前には物件内容や契約条件についてご自身で十分な確認をしていただくようにお願いいたします。 ❊ 完成予想図はいずれも外構、植栽、外観等実際のものとは多少異なることがあります。 ❊ CG合成の画像の場合、実際とは多少異なる場合があります。 ❊ 予告物件の場合、本広告を開始するまで予約・契約はできませんが、物件に関する近隣情報、ご質問などはお答えします。お気軽にお問い合わせください。







