物件詳細
マンション
■検見川パークマンションB棟
詳細画像
物件の特徴
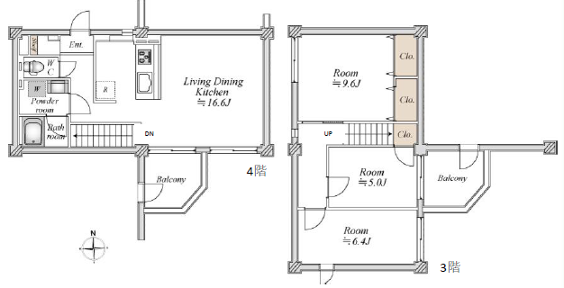
メゾネットタイプの3LDK!
アフターサービス保証付きで引き渡し後も安心の生活ができます。ペット飼育可能で大切なペットと暮らせますね♪令和7年12月内装リフォーム完了で新たな新生活を気持ちよくスタート!
周辺施設
物件詳細情報
| 所在地 | 千葉市美浜区真砂3丁目 |
|---|---|
| 交通 | JR京葉線「検見川浜」駅 徒歩約8分 |
| 専有面積 | (壁芯)84.33㎡ |
| 所在階 | 3~4階/14階建 |
| 管理費 | 15,220円/月 |
| 修繕積立金 | 23,050円/月 |
| 管理形態 | 全部委託 |
| 管理会社 | 三井不動産レジデンシャルサービス株式会社 |
| 管理方式 | 日勤 |
| 建物面積 | - |
| 用途地域 | 第一種中高層住居専用地域, 第一種住居地域 |
| 高度地区 | |
| 都市計画 | |
| 間取り | 3LDK |
| 販売数/総数 | -/360戸(1棟:62戸) |
| 完成 | 1975年(昭和50年)5月 |
| 開発許可番号/確認番号 | - |
| 土地面積 | |
| 建ぺい率 | - |
| 容積率 | - |
| 土地権利 | 所有権 |
| 地目 | - |
| 構造 | 鉄骨鉄筋コンクリート造 |
| 現状 | 空室 |
| 設備 | |
| 接道 | - |
| 引き渡し日 | 即日 |
| 取引態様 | 仲介 |
| 物件価格 | 2,180万円 |
| 備考欄 | ■ペット飼育:可(細則あり) ■主要採光面:南向き ■バルコニー面積:9.68㎡ 【令和7年12月内装リフォーム完了】 システムキッチン新規交換(食洗機付き)/ユニットバス新規交換(追焚機能・暖房乾燥換気付き)/洗面化粧台新規交換/ウォシュレット付きトイレ新規交換/給湯器新規交換/クロス貼替/フローリング貼替/フロアタイル貼替(キッチン・廊下・玄関)/建具交換/洗濯機パン・水栓交換 【その他費用】 ・駐車場:9,000円/月 ※空き状況は要確認 |
- ❊ 価格は物件の代金総額を表示しており、消費税が課税される場合は税込み価格です。(1,000円未満は切り上げ。)税率は引き渡し時期により異なりますので、各物件の詳細につきましてはお問い合わせください。 ❊ 敷地権利が借地権のものは価格に権利金を含みます。 ❊ 制作中に内容が変更される場合もありますので、あらかじめご了承ください。 ❊ 購入の前には物件内容や契約条件についてご自身で十分な確認をしていただくようにお願いいたします。 ❊ 完成予想図はいずれも外構、植栽、外観等実際のものとは多少異なることがあります。 ❊ CG合成の画像の場合、実際とは多少異なる場合があります。 ❊ 予告物件の場合、本広告を開始するまで予約・契約はできませんが、物件に関する近隣情報、ご質問などはお答えします。お気軽にお問い合わせください。
