物件詳細
戸建て
■習志野市屋敷3丁目
詳細画像
物件の特徴
\駅徒歩圏内×リノベ物件/
2025年5月内装リフォーム済みの為、新たな新生活を気持ちよくスタートできます☆人気の対面式キッチンで家族とのコミュニケーションが取りやすい設計!採光部が多く明るい空間です。
周辺施設
物件詳細情報
| 所在地 | 習志野市屋敷3丁目 |
|---|---|
| 交通 | JR総武線「幕張本郷」駅 徒歩約29分 京成本線「京成大久保」駅 徒歩約13分 |
| 土地面積 | 83.01㎡ |
| 建物面積 | 81.56㎡ |
| 用途地域 | 第一種低層住居専用地域 |
| 高度地区 | |
| 都市計画 | |
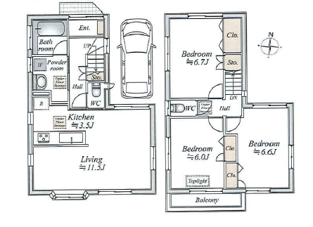
| 間取り | 3LDK |
| 販売数/総数 | 1棟/1棟 |
| 完成 | 2005年1月 |
| 開発許可番号/確認番号 | - |
| 建ぺい率 | 50% |
| 容積率 | 100% |
| 土地権利 | 所有権 |
| 地目 | 宅地 |
| 構造 | 木造2階建 |
| 現状 | 空家 |
| 設備 | 上水道, 下水道, 都市ガス |
| 接道 | 北側約4m公道に約7.6m接道 |
| 引き渡し日 | 相談 |
| 取引態様 | 仲介 |
| 物件価格 | 2,299万円 |
| 備考欄 | ■主要採光面:南向き ■駐車場:有 【2025年5月内装リフォーム完了】 屋根スレート葺き替え/外壁高圧洗浄/クラック補修/シーリング打ち変え/玄関前階段タイル補修/クロス全貼替/キッチンコーティング/クリナップガスコンロ交換/水栓交換/ダイノックシート貼/洗面台側板ダイノックシート貼/洗面ボウルコーティング/浴室内浴槽コーティング/水栓/鏡交換/物干しポール交換/TVモニター付きインターホン交換/給湯器交換/下駄箱部分補修/フローリング部分補修/1階トイレ床CF貼/便器コーティング/リビング入口引戸交換/2階トイレドア補修/2階洋室折戸設置/各室リビング1個照明残置 【設備等】 ガスキッチン/システムキッチン/カウンターキッチン/給湯/追焚機能/トイレ2箇所/バス・トイレ別/シャワー/温水洗浄便座/洗面所/洗面台/洗濯機置場/室内洗濯機置場/浴室乾燥機/フローリング/24時間換気システム/収納スペース/床下収納/シューズインクローゼット/駐輪場/モニター付きインターホン/火災警報器等設置済/振分/5年以内に内装リフォーム/5年以内にその他リフォーム(戸建てのみ) |
- ❊ 価格は物件の代金総額を表示しており、消費税が課税される場合は税込み価格です。(1,000円未満は切り上げ。)税率は引き渡し時期により異なりますので、各物件の詳細につきましてはお問い合わせください。 ❊ 敷地権利が借地権のものは価格に権利金を含みます。 ❊ 制作中に内容が変更される場合もありますので、あらかじめご了承ください。 ❊ 購入の前には物件内容や契約条件についてご自身で十分な確認をしていただくようにお願いいたします。 ❊ 完成予想図はいずれも外構、植栽、外観等実際のものとは多少異なることがあります。 ❊ CG合成の画像の場合、実際とは多少異なる場合があります。 ❊ 予告物件の場合、本広告を開始するまで予約・契約はできませんが、物件に関する近隣情報、ご質問などはお答えします。お気軽にお問い合わせください。







