物件詳細
戸建て
■船橋市山手2丁目
詳細画像
物件の特徴
東武野田線「新船橋」駅徒歩12分!
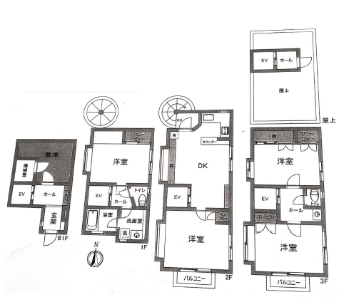
3階建て4DKの中古戸建!屋上付きで洗濯物も楽々干せます。周辺もお買い物施設が充実しており、急な買い出しも安心☆ホームエレベーター付き!詳細はお気軽にご連絡ください♪
周辺施設
物件詳細情報
| 所在地 | 船橋市山手2丁目 |
|---|---|
| 交通 | 東武野田線「新船橋」駅 徒歩約12分 京成本線「海神」駅 徒歩約18分 |
| 土地面積 | 55.14㎡(セットバック約5㎡含む) |
| 建物面積 | 106.06㎡ |
| 用途地域 | 第一種住居地域 |
| 高度地区 | 第一種高度地区 |
| 都市計画 | 市街化区域 |
| 間取り | 4DK |
| 販売数/総数 | 1棟/1棟 |
| 完成 | 1987年6月 |
| 開発許可番号/確認番号 | - |
| 建ぺい率 | 60% |
| 容積率 | 200% |
| 土地権利 | 所有権 |
| 地目 | 宅地 |
| 構造 | 鉄骨造3階建地下1階 |
| 現状 | 空家 |
| 設備 | 下水道, 公営水道, 都市ガス |
| 接道 | 南側約8.9m公道に約3.7m接道 北側約1.9m公道に約4.6m接道 南西側約3.3m公道・私道 |
| 引き渡し日 | 相談 |
| 取引態様 | 仲介 |
| 物件価格 | 3,380万円 |
| 備考欄 | ※登記上は「鉄骨造陸屋根4階建」表記となります。 ※携帯基地局アンテナ設置契約要継承 ※敷地北側に浄化槽が埋設されております。 ■主要採光面:南向き ■ホームエレベーター:有 【設備等】 ガスキッチン/システムキッチン/カウンターキッチン/給湯/追焚機能/トイレ2箇所/バス・トイレ別/シャワー/温水洗浄便座/洗面所/洗面台/室内洗濯機置場/冷房/暖房/エアコン/フローリング/ルーフバルコニー/インターネット対応/モニター付きインターホン/ペット可/楽器使用可 |
- ❊ 価格は物件の代金総額を表示しており、消費税が課税される場合は税込み価格です。(1,000円未満は切り上げ。)税率は引き渡し時期により異なりますので、各物件の詳細につきましてはお問い合わせください。 ❊ 敷地権利が借地権のものは価格に権利金を含みます。 ❊ 制作中に内容が変更される場合もありますので、あらかじめご了承ください。 ❊ 購入の前には物件内容や契約条件についてご自身で十分な確認をしていただくようにお願いいたします。 ❊ 完成予想図はいずれも外構、植栽、外観等実際のものとは多少異なることがあります。 ❊ CG合成の画像の場合、実際とは多少異なる場合があります。 ❊ 予告物件の場合、本広告を開始するまで予約・契約はできませんが、物件に関する近隣情報、ご質問などはお答えします。お気軽にお問い合わせください。
