物件詳細
マンション
■高洲一丁目住宅第壱-壱七―四号棟
詳細画像
物件の特徴
JR京葉線「稲毛海岸」駅徒歩7分!
リノベ済み2LDK中古マンションです☆綺麗な状態でのお渡しなので気持ちよく新生活をスタートできます♪南向き住戸!設備も充実しており毎日の暮らしにゆとりがもてます。
周辺施設
物件詳細情報
| 所在地 | 千葉市美浜区高洲1丁目 |
|---|---|
| 交通 | JR京葉線「稲毛海岸」駅 徒歩約7分 京成千葉線「京成稲毛」駅 徒歩約17分 JR総武線「稲毛」駅 徒歩約25分 |
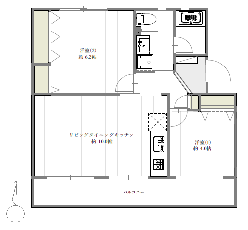
| 専有面積 | (壁芯)48.93㎡ |
| 所在階 | 4階/5階建 |
| 管理費 | 5,000円/月 |
| 修繕積立金 | 13,550円/月 |
| 管理形態 | 全部委託 |
| 管理会社 | 日本総合住生活株式会社 |
| 管理方式 | 日勤 |
| 建物面積 | - |
| 用途地域 | 第一種中高層住居専用地域 |
| 高度地区 | |
| 都市計画 | |
| 間取り | 2LDK |
| 販売数/総数 | -/550戸(1棟:40戸) |
| 完成 | 昭和51年3月 |
| 開発許可番号/確認番号 | - |
| 土地面積 | |
| 建ぺい率 | - |
| 容積率 | - |
| 土地権利 | 所有権 |
| 地目 | - |
| 構造 | RC(鉄筋コンクリート造) |
| 現状 | 空室 |
| 設備 | |
| 接道 | - |
| 引き渡し日 | 即可 |
| 取引態様 | 仲介 |
| 物件価格 | 1,588万円 |
| 備考欄 | ※家具・小物はCGによるイメージです。 ■ペット飼育:不可 ■主要採光面:南向き ■バルコニー面積:9.19㎡ ■EV:無 【令和7年12月内装リフォーム完了】 システムキッチン(食洗機)/ユニットバス(追焚機能・浴室乾燥機)/洗面化粧台/給湯器/建具/下駄箱/クロス/トイレ/フロアタイル/フローリング/ハウスクリーニング ※窓サッシ・玄関ドア交換(2023年度実施) 【設備等】 システムキッチン/食洗機/オートバス/浴室乾燥機/温水洗浄便座 【その他費用】 ・駐車場:5,000円/月 ※空き状況は要確認 ・バイク置場:500~1,500円/月 ・駐輪場:1,000円/年 |
- ❊ 価格は物件の代金総額を表示しており、消費税が課税される場合は税込み価格です。(1,000円未満は切り上げ。)税率は引き渡し時期により異なりますので、各物件の詳細につきましてはお問い合わせください。 ❊ 敷地権利が借地権のものは価格に権利金を含みます。 ❊ 制作中に内容が変更される場合もありますので、あらかじめご了承ください。 ❊ 購入の前には物件内容や契約条件についてご自身で十分な確認をしていただくようにお願いいたします。 ❊ 完成予想図はいずれも外構、植栽、外観等実際のものとは多少異なることがあります。 ❊ CG合成の画像の場合、実際とは多少異なる場合があります。 ❊ 予告物件の場合、本広告を開始するまで予約・契約はできませんが、物件に関する近隣情報、ご質問などはお答えします。お気軽にお問い合わせください。







